Djupadal

Bullerbäcksgatan 3

Typ
Kedjehus
Boarea/biarea
126/22 kvm
Antal rum
5 rum
Tomtarea
354 kvm
Pris
5 500 000 kr
Bilder Bostaden Visning Ritning Karta

Coolt 60-tal i modern tappning. Kedjehuset på Bullerbäcksgatan 3 är ett väl omhändertaget hem där man anammat byggåret 1961. Det L-formade husets 126 kvadrat disponeras i ett plan med fokus på horisontella linjer och tidstypisk funktionalitet. Ut mot atriumgården vetter de höga träfönstren på rad, ett fint sätt att maximera kontakten med innergården. Volym, ljus och utsuddade gränser mellan ute och inne gör sällskapsrummet till något alldeles extra. Här möter klassisk holländsk parkett färgstark konst och retromöbler. Köket följer samma stilsäkra linje där linoleum och trä kombineras med en rostfri bänkskiva och korkmatta. Huset rymmer hela fyra sovrum och ligger i ett mycket barnvänligt kvarter. Utomhus blomstrar rabatterna i vårens färger, och snart står buskar och träd i full grönska i den insynsskyddade trädgården. Områdets grönområden, lekplatser och närheten till skolor och förskolor lockar familjer. Varmt välkomna till ett härligt hus med många kvaliteter!
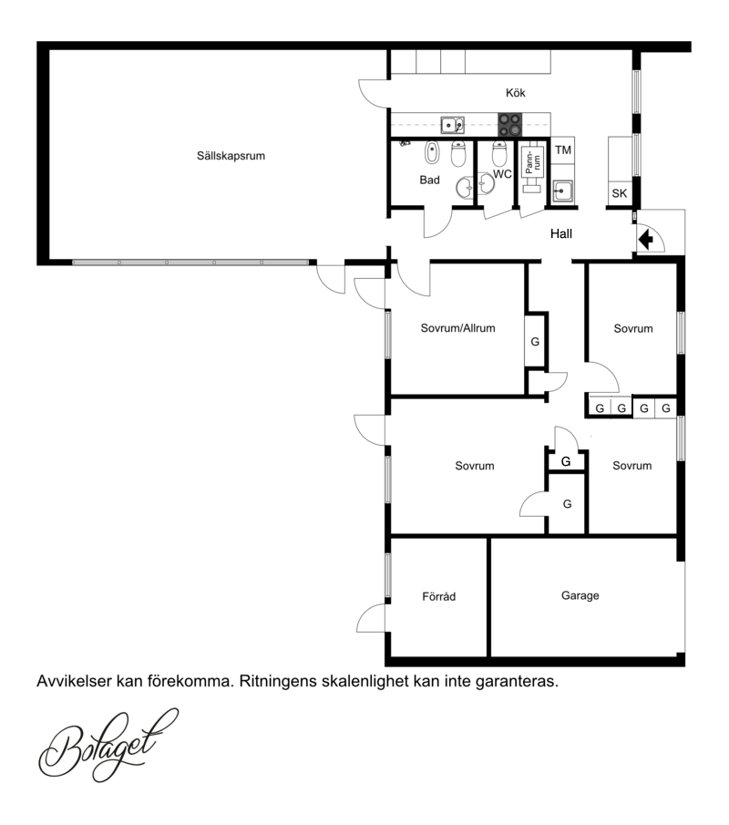
Rumsbeskrivningar

HALL

Linoleumgolv och ljusa väggar.

KÖK

Korkgolv och vita väggar. Grå köksinredning och bänkskiva i rostfritt stål. Maskinell utrustning i form av kyl/frys, induktionshäll, diskmaskin, varmluftsugn och fläkt. Här finns även "grovkök" med tvättmaskin.

SÄLLSKAPSRUM

Parkettgolv och ljusa väggar. Utgång till trädgård.

SOVRUM

Linoleumgolv och ljusa väggar. Utgång till trädgård.

SOVRUM

Linoleumgolv och ljusa väggar. Klädkammare. Utgång till trädgård.

SOVRUM

Linoleumgolv och ljusa väggar.

SOVRUM

Linoleumgolv och ljusa väggar.

BADRUM

Badrum med ljus plastmatta. Toalett, duschhörna samt handfat.

GÄST-WC

Ljust klinkers på golvet och vita väggar. Toalett och handfat.

Fakta
Upplåtelseform
Friköpt
Fast.beteckning
Skivsvampen 3
Adress
Bullerbäcksgatan 3
Postadress
216 20 Malmö
Område
Djupadal
Kommun
Malmö
Bo & biarea
126 + 22 m² (faktiskt uppmätn norm SS021054)
Antal rum
5 rum och kök, varav 4 sovrum
Tomtarea
354 m²
Pris
5 500 000 kr
Byggnad
Byggnadstyp
1-plans kedjehus
Byggnadsår
1961
Fasad
Tegel
Stomme
Trä/lättbetong
Fönster
2-glas
Plåtarbete
Lackerad plåt
Tak
Papp
Grund
Krypgrund
Uppvärmning
Fjärrvärme
Vatten/avlopp
Kommunalt vatten året om. Kommunalt avlopp
Ventilation
Självdrag
Renovering
2021 - Nytt kök
2019 - Ny fjärrvärmeväxlare
2016-18 Ytskikt, golv, väggar och tak .
2015 - Nytt papptak plus plåtarbete

TV- och internetanslutning

Bredband:
Fiber finns i gatan. Nuvarande ägare använder sig av mobilt bredband.

Besiktning

Förbesiktigad
Ja

Energideklaration

Status
Utförd (2026-04-13)
Primärenergital
116 kWh/m2/år
Energiklass
D
Ekonomi

Driftskostnader per år

Uppvärmning
21 500 kr
Hushållsel
6 000 kr
Vatten/avlopp
6 600 kr
Renhållning
2 700 kr
Försäkring
4 900 kr
Summa
41 700 kr (fastighetsavgift på 10 425 kr/år tillkommer)

Taxeringsinformation

Taxeringsvärde
4 310 000 kr
Taxeringsår
2024
Värdeår
1961
Byggnadsvärde
2 457 000 kr
Markvärde
1 853 000 kr
Fastighetsavgift
10 425 kr/år
Typkod
220, Småhusenhet, bebyggd

Pantbrev

Totalt 10 st pantbrev om 2 850 000 kr.

Servitut / Planbestämmelser

Planbestämmelser
Tomtindelning (1961-07-13) Stadsplan (1961-01-05)
Området
Djupadal är ett bostadsområde i stadsdelen Limhamn-Bunkeflo. Djupadal ligger mellan Rudbecksgatan och Inre ringvägen, väster om Elinelundsvägen. Området består till stor del av radhus, kedjehus och villor, byggda under 1950-talet och framåt. I den västra delen ligger Limhamns kyrka, med sin stora kyrkogård. Centralt ligger Djupadalsskolan. I området finns även Djupadals, Brodda, och Morotens förskola. Alla är mycket populära och eftertraktade skolor. Området är uppkallat efter Djupadalsgården, som låg på platsen innan 50-talets bebyggelse tillkom. Området lockar med närhet till Emporia och Hyllie tågstation men även promenadstråk vid det gamla kalkbrottet.
Dokument
Ansvarig mäklare Victor Jörgensen Reg fastighetsmäklare/delägare [email protected] 076-112 04 14

Kommande visningar

sön 19 april kl 16:10-16:20
mån 20 april kl 13:00-13:30

Funderar du på hur mycket ditt boende kan vara värt?

Oavsett om du ska sälja eller bara är nyfiken på vad den är värd gör vi gärna en kostnadsfri värdering. Slå oss en signal på 040-10 11 00 och boka en tid eller fyll i formuläret så blir du kontaktad inom kort.